Ubicación
La Planta Si-Al se ubica en un edificio industrial existente, construído para la función de deposito de materiales eléctricos y oficinas. El comitente nos encargó la remodelación del mismo para alojar su industria alimenticia y la refuncionalización como su nueva planta de elaboración, procesamiento y depósitos.
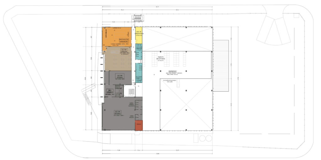
Proyecto
El programa incluye funciones como Cocina de elaboración, Sector de desposte de carnes, Area de procesamiento de verduras, Depósito de productos secos, Camaras Frigoríficas, Oficinas administrativas, comedor, vestuarios y baños. Se intervino el edificio completo para incorporar todas las áreas. Las mismas se trabajaron con asesores técnicos de cada especialidad, realizando la coordinación general de su lay-out funcional y circuitos de carga y descarga.





















